Für ein Wasserkraftwerk in Angola, wurden wir im Rahmen der umfangreichen Kraftwerksmodernisierung bereits vor einiger Zeit mit der Entwicklung und Optimierung eines neuen Kaplan Laufrades beauftragt. Das Kraftwerk, welches im Jahr 1959 in Betrieb ging, ist mit drei Kaplan-Turbinen ausgestattet und verfügt über folgende Kennwerte:
Mithilfe von CFD-Techniken wurde das hydraulische Verhalten simuliert, welches den Spezifikationen der neuen empfohlenen hydraulischen Geometrie und Turbinendrehzahl für das bestehende Wasserkraftwerk entspricht.
Die numerische Simulation mittels CFD basiert auf den Erfahrungen, die mit realen Modellversuchen gemäß IEC 60193 gewonnen wurden. Der Vorteil dieser Berechnungsmethode liegt in ihrer Schnelligkeit, der einfachen Anpassbarkeit und der Möglichkeit, den Prototyp in Originalgröße zu testen, ohne Wirkungsgrad-Transformationen durch eine Modell-/Prototyp-Skalierung anwenden zu müssen.
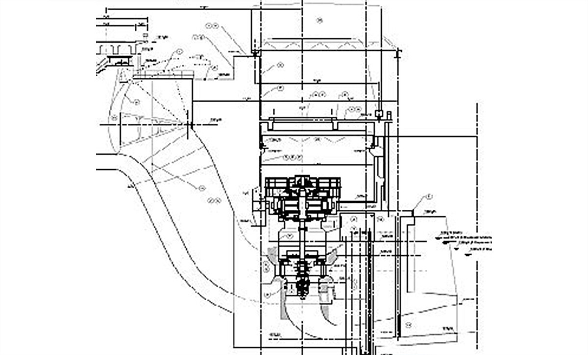
Im ersten Schritt wurde die gesamte Anlage, die Geometrie der Spirale, des Leitapparats, der Laufradnabe, des Laufradmantels und des Saugrohrs (bestehend aus Saugrohrkonus, Krümmer sowie horizontalem Diffusor), anhand der vorhandenen Geometrien in einem 3D-Modell nachgebildet.
Für die Entwicklung der neuen Laufschaufelgeometrie wurden in Folge drei verschiedene Basis-Designs untersucht (siehe Abbildungen) und hinsichtlich ihres Wirkungsgrads und des Kavitationsverhaltens analysiert. Die Entwürfe basierten auf von uns erstellten Turbinendesigns mit ähnlicher Drehzahl. Der endgültige Entwurf der Laufradschaufel ist schließlich das Ergebnis einer Reihe von Tests und Optimierungen.
Im Zuge dessen wurde auch die Wirksamkeit von Kavitationsleisten für Kaplan-Schaufeln analysiert. Hierbei zeigte sich, dass diese in diesem Fall keine Verbesserung des Kavitationsverhaltens bewirkten.
Die Simulation bestätigte auch, dass das bestehende Spiralgehäuse für den Volllastfall korrekt ausgelegt ist und die Einströmbedingungen an den Leitschaufeln insgesamt sehr gut ausfallen. Darüber hinaus zeigten die Ergebnisse, dass die kombinierten Verluste im Spiralgehäuse- und Leitapparat auf einem vergleichsweise niedrigen Niveau liegen, was die geeignete Auslegung des Spiralgehäuses zusätzlich untermauert.
Für einen Betriebspunkt nahe dem Volllastbetrieb (H = 19,5 m, Q ≈ 68 m³/s) wurde zudem eine Visualisierung der Strömung im Spiralgehäuse und im Leitapparat erstellt – siehe folgende Abbildungen.
Zur Analyse der Strömung im Saugrohr muss vor allem der Volllastbetrieb genauer analysiert werden. Hier zeigte die Visualisierung deutlich eine weitgehend homogene Geschwindigkeitsverteilung auf unterschiedlichen Querschnitten und kaum Gefahr für Strömungsablösung.
Die Ergebnisse belegen nicht nur die Eignung der Konstruktion des Saugrohrs, sondern zeigen auch, dass das neue Laufrad gut an die Geometrie des vorhandenen Saugrohrs angepasst wurde.
Mit Hilfe zusätzlicher Simulationen bei H=21,5 m und H=17,5 m wurde ein Turbinenkennfeld erstellt, über welches auch die ideale Kombination aus Leit- und Laufschaufelposition ermittelt wurde. Es konnte schließlich ein Spitzenwirkungsgrad von mindestens 94% erreicht werden.
Zu guter Letzt wurde mit der endgültigen Laufradgeometrie eine Netzempfindlichkeitsstudie an zwei Betriebspunkten durchgeführt. Dies, um dein Einfluss der Rechennetzauflösung auf die Simulationsergebnisse zu überprüfen. Hierzu wurde das für die Optimierung verwendete Netz sensitiv verfeinert und die Gesamtzahl der Knoten annähernd verdoppelt.
Die Studie zeigte, dass dadurch nur ein sehr geringer und vernachlässigbarer Unterschied im Wirkungsgrad und Kavitationsverhalten feststellbar ist. Damit konnten die Ergebnisse als netzunabhängig bezeichnet werden, was unsere Erfahrung bestätigt.
Die Turbinen sind nun bereits seit einigen Jahren erfolgreich im Betrieb und ermöglichen eine nachhaltige, stabile Elektrizitätsversorgung im westafrikanischen Staat.
Akustische Durchflussmessung ADM
Unsere Messmethoden
Zum Newsletter anmelden und am Laufenden bleiben über unsere Aktivitäten, Weiterbildung und Konferenzen.

Jürgen Schiffer-Rosenberger
Dipl.-Ing. Dr.techn.
CEO und geschäftsführender Gesellschafter

Stefan Höller
Dipl.-Ing.
Chief Engineer

Christian Bodner
Dipl.-Ing.
Chief Engineer